方案展示
設計說明
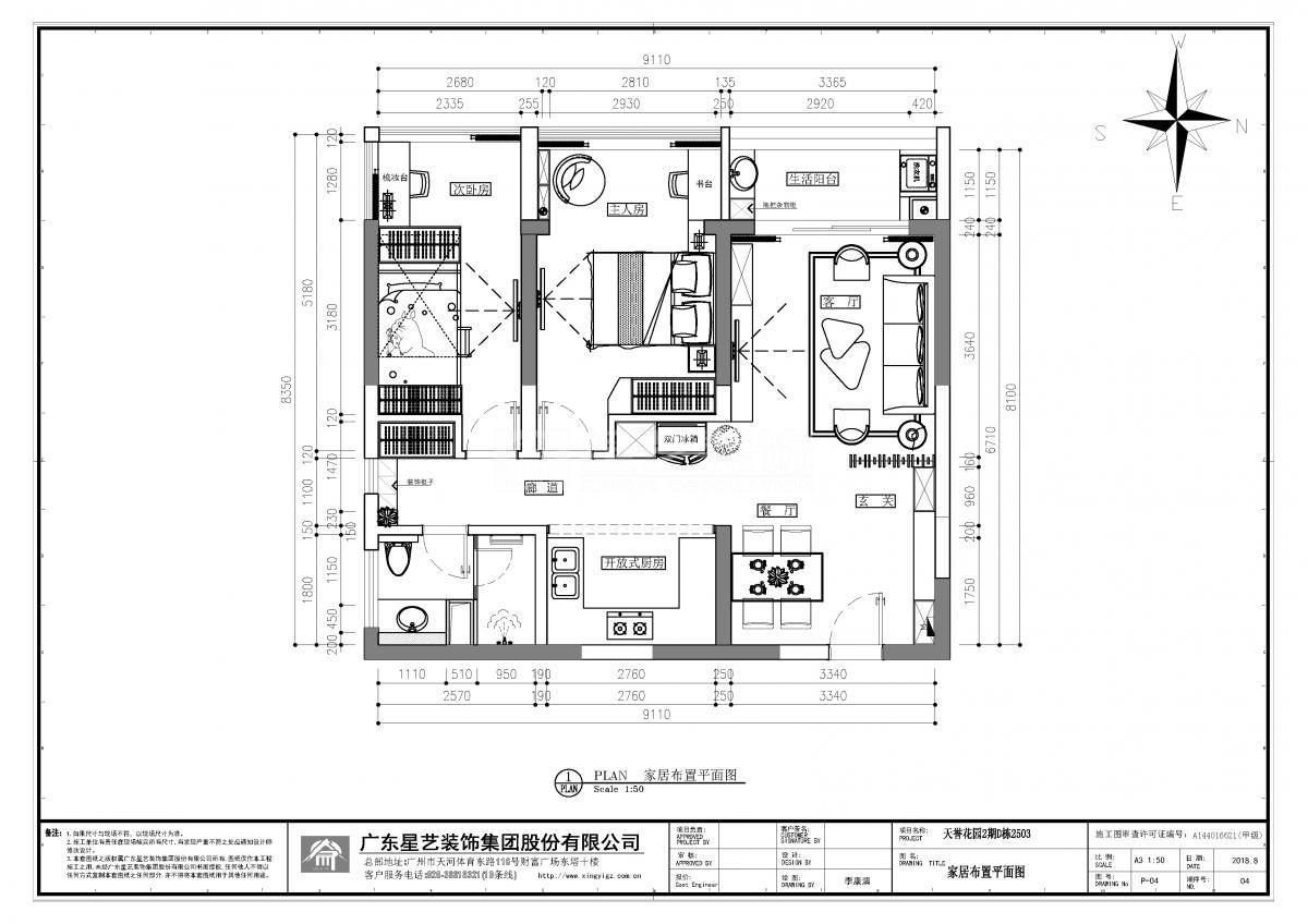
業(yè)主是90后的年輕人,職業(yè)是銀行經(jīng)理,對生活有一定的追求,喜歡簡約大方的風格。想要居住的空間舒適明亮。 整個設計最大的特點就是把之前空間采光差,廚房和衛(wèi)生間很暗,白天不開燈基本上是沒有光的。主臥室空間也非常的小。 后來通過設計改造,把廚房設計成開敞式,把過道的一部分空間容納到廚房里,讓廚房變得光線明亮且空間大了很多。再把主臥空間往陽臺外面擴出去,加大的主臥空間,讓整個空間變得明亮且舒適開敞。
[展開]-
星藝設計師的其它設計案例
-
簡約風格的其它設計案例
關注我們
分享到
微信

立即預約
在線咨詢
在線客服
公安部備案號 44010602004978號